top of page

ASTABURUAGA & ARQUITECTOS ASOCIADOS
Edificios de viviendas, intervenciones o remodelaciones urbanas, equipamiento comercial, entre otros.

EDIFICIO LOFT
Astaburuaga y Oyarzún Arquitectos
Inmobiliaria Nollagam Ltda
UBICACIÓN
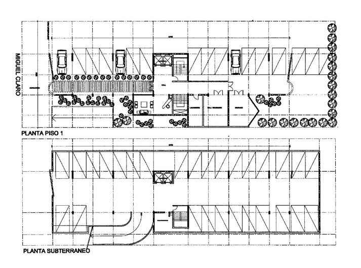
Miguel Claro 502, Providencia, Santiago.
AÑO
2003
CARACTERÍSTICAS
Superficie Construida : 3.252m2.
9 pisos + 2 Subterraneos, 40 departamentos duplex

bottom of page












